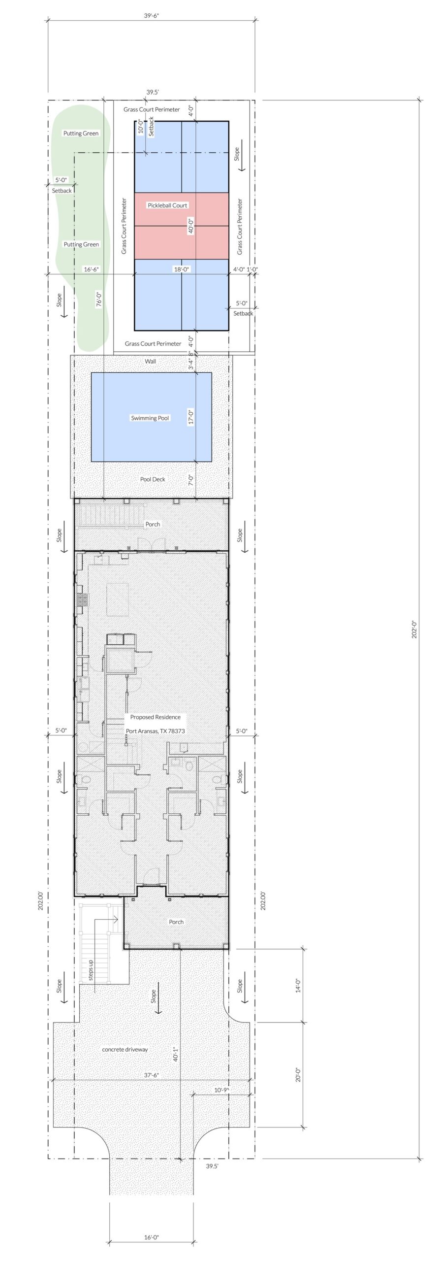
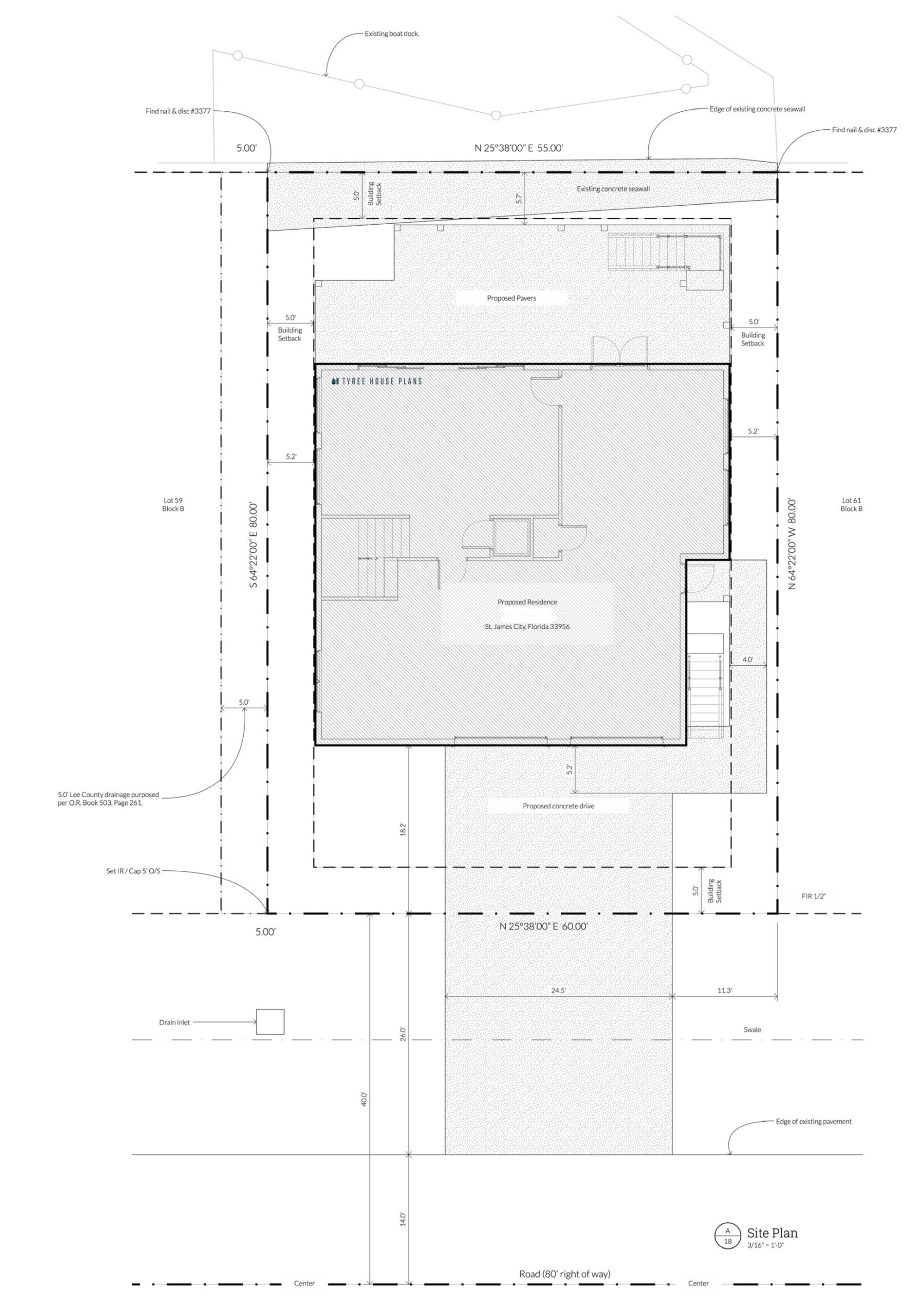
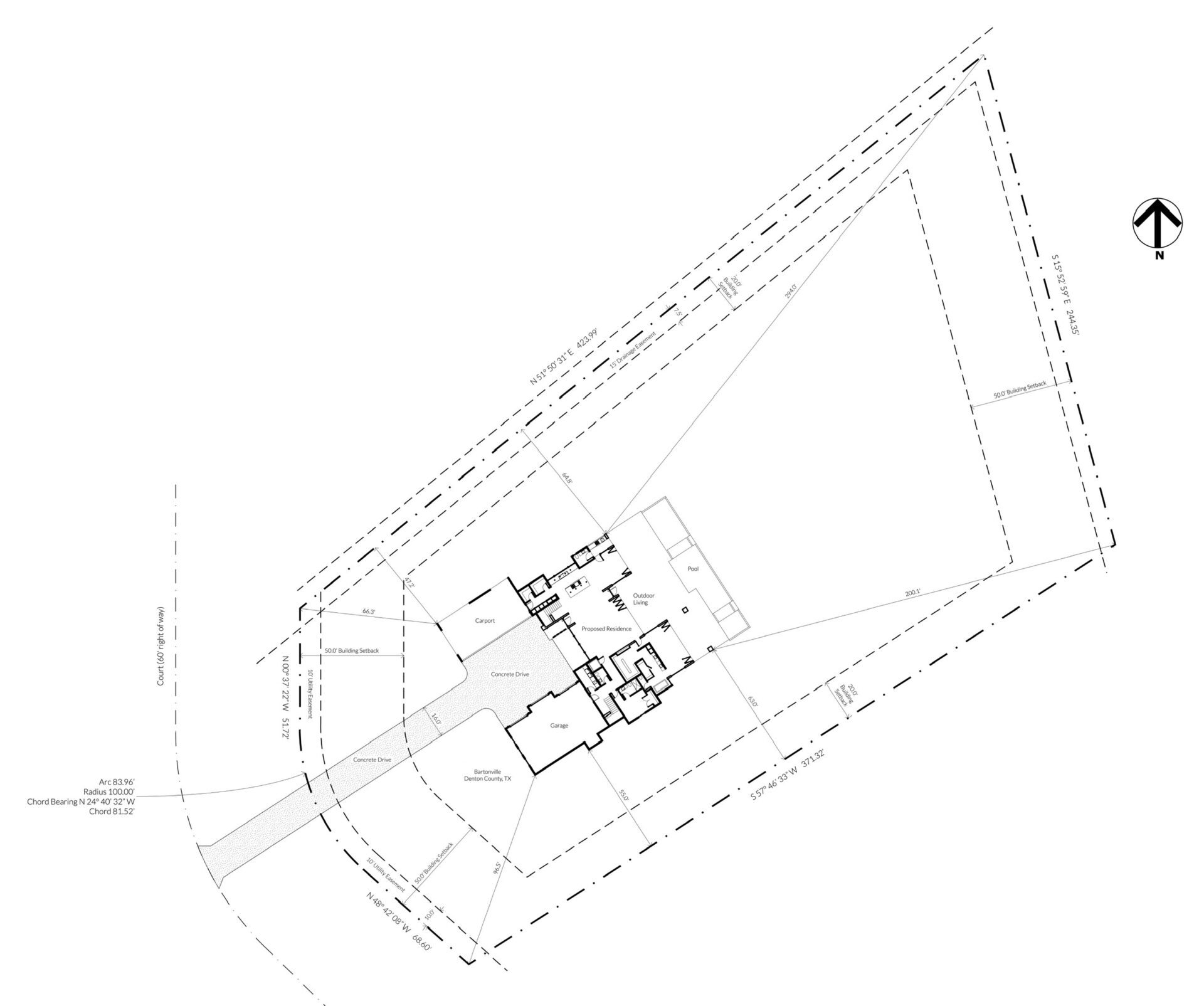
Site Plan
$1,500
Generation of a site plan based on existing site survey. The site to include:
- Property boundary
- Known setbacks, easements and conservation zones
- Structure location (based on THP plan selected). Dimensioning of the structure from the property lines.
- Hardscape including driveway, sidewalk and patios.
We can provide the following optional features for an additional fee.
- Topography
- Drainage
- Construction Staging
Below are a few samples of recent site plans that we’ve created for customers.








Reviews